Mongeham Road, Mongeham, Deal, CT14

Sold STC - Guide Price £1,000,000

4 2 2
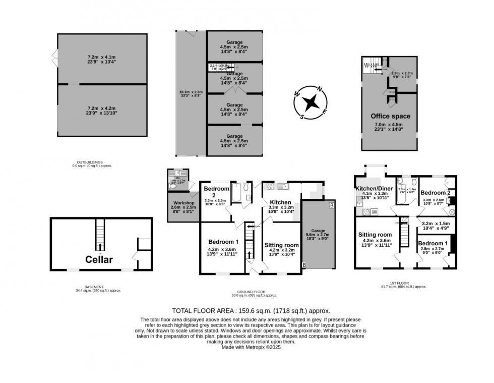
The property was formerly a farmhouse and is currently configured into 2 two bedroom flats, both in need of updating throughout.

The property sits slightly set back from the road on a substantial sized plot, equating to around 1.11 acres, with separate vehicular access to one side and an array of garages and outbuildings.

The property offers a variety of options either as an investment opportunity in its current configuration or as a single family dwelling with potential to extend. It is thought that the plot also offers development opportunity for multiple dwellings subject to necessary consents being obtained.

In its current configuration, the front door opens to a small entrance hall off which the two flats have independent access.

The ground floor flat comprises of a sitting room to the front leading through to the kitchen off which is a utility area. Beyond is a family bathroom, 2 double bedrooms and access to a cellar. This flat also has direct access to the garden.

The first floor flat also offers 2 double bedrooms, a kitchen/diner at the rear overlooking the garden, sitting room overlooking the front and a family bathroom.

OUTSIDE
The property is set back from the road with a
lawned front garden. To one side is a single garage with an up and over door, in which are housed two gas boilers which service the two flats.

To the side is a driveway which leads to a concrete yard area and the land at the rear. Currently comprising of a variety of outbuildings including a block of 4 garages with an office area above as well as a number of other workshops and storage areas, most with power connected, and an outside toilet.

///what3words
compose.moguls.venturing

For full details, please download our property web brochure document.

Viewings: Strictly by appointment with the agents.

Identification checks: should a purchaser(s) have an offer accepted on a property marketed by Bright & Bright, they will need to undertake an identification check. This is done to meet our obligation under Anti Money Laundering Regulations (AML) and is a legal requirement. We use a specialist third party service to verify your identity. The cost of these checks is £30 inc. VAT per purchaser, which is paid in advance, when an offer is agreed and prior to a sales memorandum being issued. This charge is non-refundable under any circumstances.
  • Renovation
  • Investment
  • Plot
  • Development opportunity
  • Potential
  • No onward chain
Floorplan for Mongeham, Deal
EPC Graph for Mongeham, Deal
Similar Properties