Matthews Close, Deal, Kent, CT14

For Sale - Guide Price £350,000

3 1 2
Set within a peaceful cul-de-sac, this well loved three bedroom semi-detached home has been cherished for many years and now offers a wonderful opportunity for a new owner to update and personalise.

The property benefits from double glazing throughout and gas central heating (with a new boiler fitted in 2025).

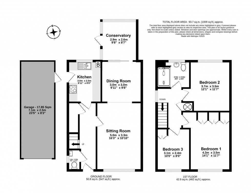
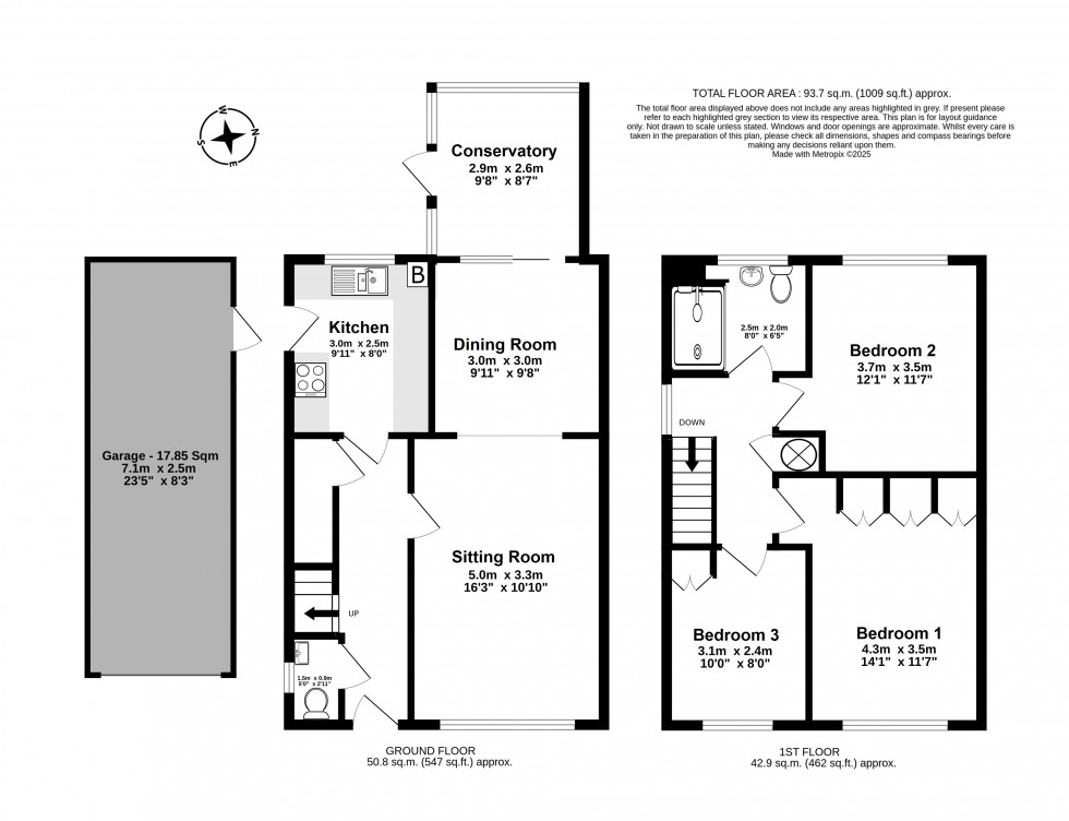
The ground floor features a bright and generously proportioned sitting room overlooking the front garden, leading through to a separate dining room with direct access to the conservatory. The kitchen sits conveniently alongside, with scope for modernisation or reconfiguration, subject to requirements. A ground floor cloakroom adds to the practical layout.

Upstairs, the property offers three bedrooms, including a spacious principal bedroom, along with a family bathroom. The accommodation is well balanced and filled with natural light throughout.

OUTSIDE

Externally, the house benefits from a detached garage and off-street parking, with front and rear gardens that have been carefully maintained over the years.

///what3words
loving.rewarding.voters

For full details, please download our property web brochure document.

Viewings: Strictly by appointment with the agents.

Identification checks: Should a purchaser(s) have an offer accepted on a property marketed by Bright & Bright, they will need to undertake an identification check. This is done to meet our obligation under Anti Money Laundering Regulations (AML) and is a legal requirement. We use a specialist third party service to verify your identity. The cost of these checks is £30 inc. VAT per purchaser, which is paid in advance, when an offer is agreed and prior to a sales memorandum being issued. This charge is non-refundable under any circumstances.
  • No onward chain
  • Peaceful cul-de-sac
  • Easy access to town, station, beach
  • Conservatory
  • Ground floor cloakroom
  • Garden
  • Off street parking
  • Detached garage
Floorplan for Deal, Kent
EPC Graph for Deal, Kent
Similar Properties