Chestnut Drive, Worth, Deal, Kent, CT14

For Sale - Guide Price £395,000

2 1 2
Set back from the road in the village of Worth, this well presented detached bungalow offers well proportioned and versatile accommodation throughout.

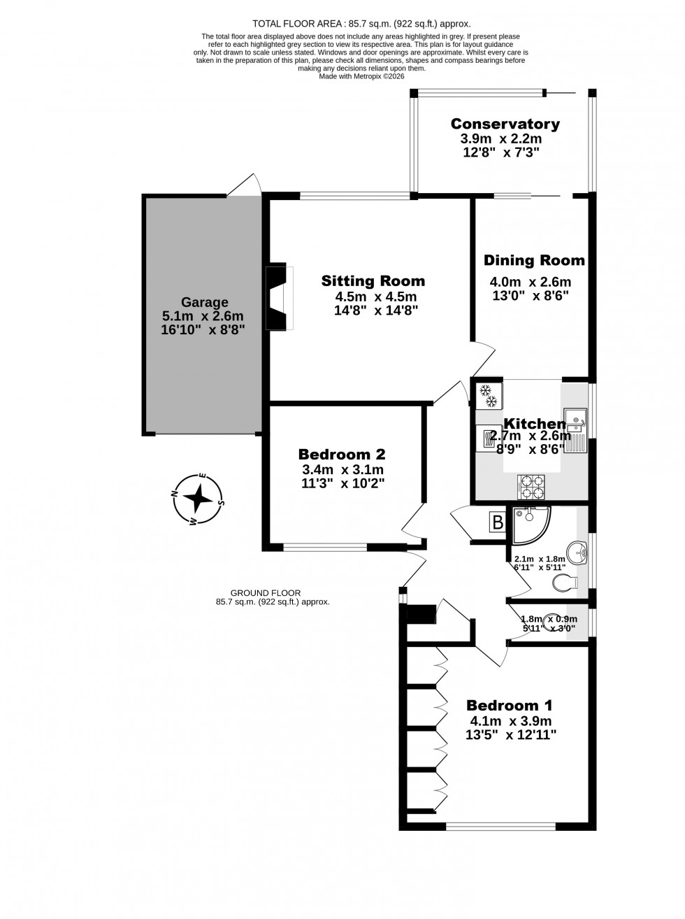
An entrance porch opens into a welcoming hallway with useful built-in storage cupboards. The sitting room is bright and inviting, featuring a large window overlooking the rear garden and a feature fireplace creates a focal point to the room. The kitchen is fitted with a range of units and connects conveniently to the dining room, which could also be used as a third bedroom. To the rear, a conservatory is accessed from the dining room, providing additional living space and enjoying pleasant views over the garden. There is also a shower room and separate WC, adding practicality to the layout.

To the front of the property is the principal bedroom, a comfortable double room complete with fitted wardrobes. A second double bedroom sits to the rear.

OUTSIDE

The rear garden is a particularly appealing feature, being predominantly laid to lawn, it is well maintained and bordered with established planting. A patio area offers space for outdoor seating, with side access to the front of the property and a garden shed for additional storage.

The overall plot offers a good balance of lawn and planted areas, ideal for keen gardeners or those seeking a manageable yet enjoyable outdoor space. The property benefits from a generous block-paved driveway providing ample off-street parking, together with a lawned front garden and garage.

///what3words
squeaking.supposing.feel

For full details, please download our property web brochure document.

Viewings: Strictly by appointment with the agents.

Identification checks: should a purchaser(s) have an offer accepted on a property marketed by Bright & Bright, they will need to undertake an identification check. This is done to meet our obligation under Anti Money Laundering Regulations (AML) and is a legal requirement. We use a specialist third party service to verify your identity. The cost of these checks is £30 inc. VAT per purchaser, which is paid in advance, when an offer is agreed and prior to a sales memorandum being issued. This charge is non-refundable under any circumstances.
  • Well presented
  • Modern bungalow
  • Peaceful village location
  • Versatile accommodation
  • Good size mature rear garden
  • Driveway with ample parking
  • Garage
Floorplan for Worth, Deal, Kent
EPC Graph for Worth, Deal, Kent
Similar Properties