Middle Street, Deal, Kent, CT14

Sold STC - Guide Price £495,000

6 1 2
Situated in the heart of the Middle Street Conservation Area, this Grade II listed mid terrace property was formerly a pub owned by Charringtons Brewery dating back to 1828 and operating as a public house until 1959.

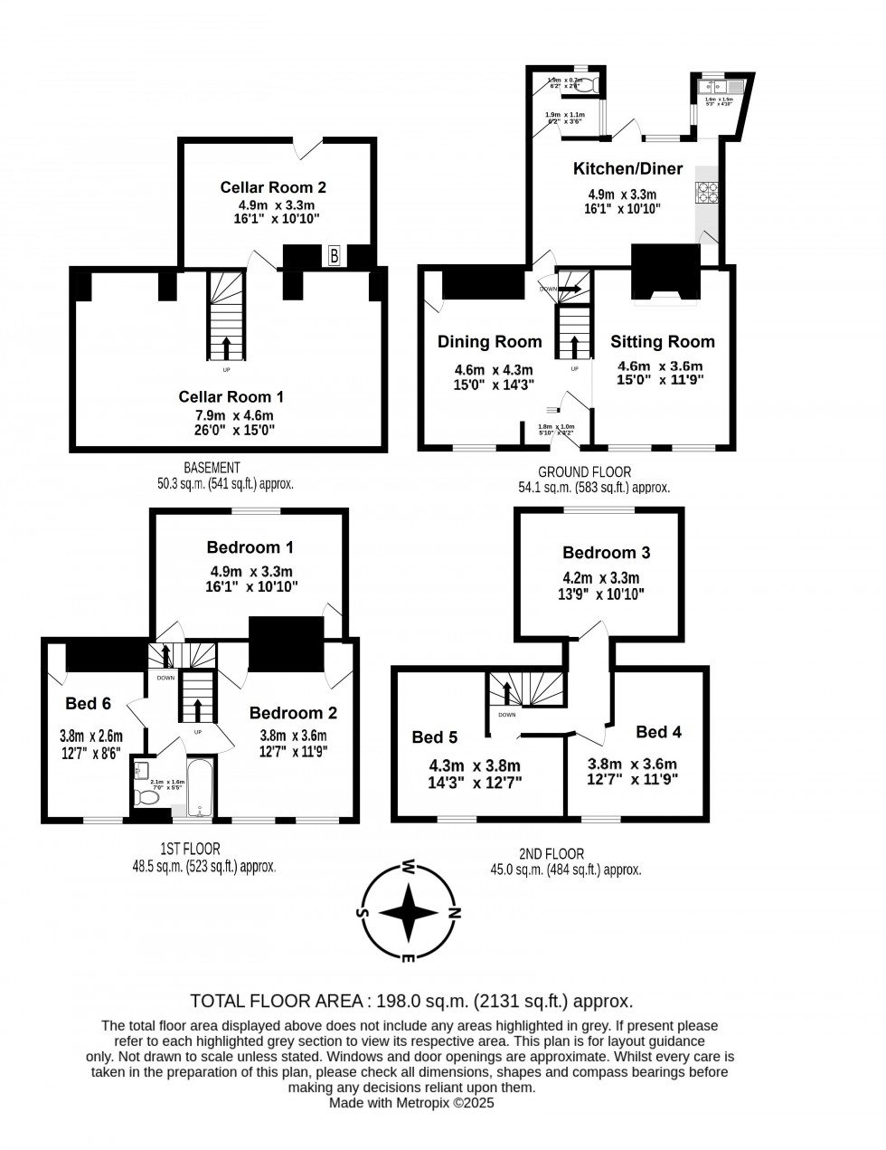
The property retains a number of original features including panelling, fireplaces, floorboards and original pub mirrors. The house is now in need of updating throughout, but offers well proportioned and light accommodation over 4 floors, including a large cellar which extends under the whole house.

The ground floor enjoys an unusual open plan layout with the entrance porch opening to a double reception room, with dining area to one side and sitting room to the other. Both enjoy window seats overlooking Middle Street, original fireplaces and built-in storage. Beyond the dining room is the kitchen/ diner with scullery off to one side and a utility and cloakroom to the other.

A gentle and wide staircase leads to a half landing and onto a double bedroom at the rear before continuing up to another two bedrooms and the family bathroom on the first floor. A further staircase leads into the attic space where another three double bedrooms can be found, all enjoying views over the neighbouring rooftops.

OUTSIDE

To the rear of the property is a fully enclosed west facing garden, accessed from the kitchen via a wooden staircase, or from the rear cellar room.

///what3words
giant.wooden.drums

For full details, please download our property web brochure document.

Viewings: Strictly by appointment with the agents.

Identification checks: Should a purchaser(s) have an offer accepted on a property marketed by Bright & Bright, they will need to undertake an identification check. This is done to meet our obligation under Anti Money Laundering Regulations (AML) and is a legal requirement. We use a specialist third party service to verify your identity. The cost of these checks is £30 inc. VAT per purchaser, which is paid in advance, when an offer is agreed and prior to a sales memorandum being issued. This charge is non-refundable under any circumstances.
  • No onward chain
  • Grade II listed
  • Original features
  • Conservation Area
  • Close to seafront and town centre
  • In need of renovation
  • Fully enclosed garden
  • Large cellar
Floorplan for Deal, Kent
EPC Graph for Deal, Kent