Wellington Parade, Kingsdown, Deal, CT14

For Sale - Guide Price £1,675,000

4 2 2
San Josef presents a rare and exciting opportunity to acquire a beautiful detached marine residence in one of Kingsdown’s most desirable locations. Situated fronting the pedestrian section of Wellington Parade, the house occupies an enviable position overlooking the beach, with uninterrupted views across the Channel to France and sits adjacent to the iconic White Cliffs. The house occupies a generous sized plot offering scope and versatility in its usage.

Constructed in the early 1900's, the property retains much of its Edwardian charm, with many original features preserved including stained glass windows, oriel windows, original fireplaces and picture rails. Internally, the house offers well-proportioned and wonderfully light accommodation arranged over two floors, as well as a generous first floor balcony from which to enjoy the panoramic views.

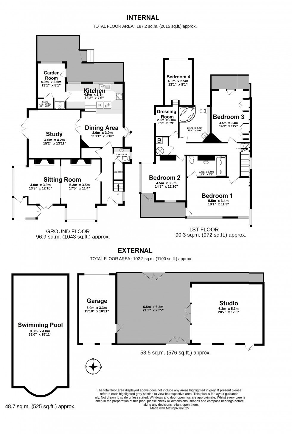
The front door opens to a spacious hallway off which is a generously proportioned double reception room enjoying breathtaking, uninterrupted views across the beach and sea. Beyond is a useful cloakroom and coat store, together with a split-level kitchen/diner providing a superb family and entertaining space, complete with original fireplace. A further reception room adjoins the dining area with French doors leading onto the garden. Beyond the kitchen is a small garden room which also includes a sauna with adjacent shower, and a door onto the garden.

The first floor provides four to five bedrooms and two bathrooms. The principal bedroom suite is particularly impressive, a generous size and wonderfully light with a double aspect outlook and a spacious en-suite bathroom, as well as access onto the covered balcony. A further three bedrooms, one with a balcony overlooking the rear garden and a family bathroom complete the accommodation on this floor.

GARDEN AND GROUNDS

The rear garden is both private and west facing, offering excellent space for recreation and relaxation. The centrepiece is a well maintained 32ft swimming pool, surrounded by a terrace, lawn and well established garden.

At the bottom of the garden is a spacious detached studio, formerly a double garage, offering superb flexibility as a home office, creative space or guest accommodation. In addition, there is a further single garage, housing the pool pump and filter, and off-street parking. This area offers scope for further development if required, subject to the necessary planning consents.

///what3words
rinses.foreheads.wider

For full details, please download our property web brochure document.

Viewings: Strictly by appointment with the agents.
  • Highly sought after location
  • Beach front
  • Uninterrupted sea views
  • Period features
  • West facing garden
  • Spacious studio
  • 32ft swimming pool
  • Gararge and parking
  • Potential to develop (subject to consent)
  • No onward chain
Floorplan for Kingsdown, Deal
EPC Graph for Kingsdown, Deal
Similar Property