Colmanton Grove, Sholden, Deal, CT14

Sold STC - Guide Price £290,000

3 2 1
Local amenities and the village school are close by and Deal town centre, station and sea front are within easy reach.

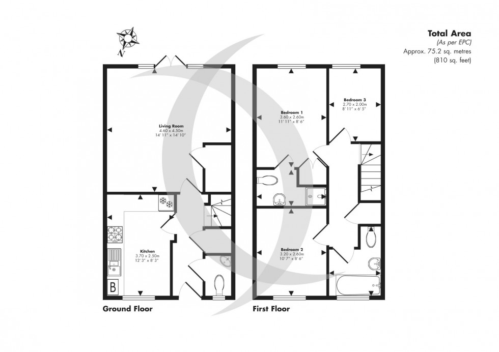
The front door opens to the entrance hall with built-in cupboard and guest WC. The L-shaped living room, wth built-in under stairs cupboard, has double doors opening on to the garden. The kitchen is fully fitted with white units, a gas hob and built-in electric oven, together with an Integrated fridge/freezer. A wall cupboard houses the gas fired boiler.

On the first floor landing there is a useful built-in linen cupboard and access to the loft. The main bedroom offers a built-in wardrobe and communicating door to an ensuite shower room. There are 2 further bedrooms and a family bathroom.

OUTSIDE

To the rear of the property is a fully enclosed garden laid mainly to lawn with a small patio area. There is a useful shed, outside water supply and rear access to the car port, with parking for an additional car in front.

///what3words
also.startles.talker

For full details, please download our property web brochure document.

Viewings: Strictly by appointment with the agents.
  • No onward chain
  • Ideal rental or first home
  • Village location
  • Modern property
  • 2 bathrooms
  • Fully enclosed rear garden
  • Car port
  • Off-road parking
Floorplan for Sholden, Deal
EPC Graph for Sholden, Deal
Similar Properties